PURES DESIGN
/与闻珠宝店
与闻珠宝 关于设计的优雅感
璀璨珠宝与一座质朴教堂的邂逅!

项目地址 | 四川省 成都市 府城大道 仁和春天国际广场B座
Project Address |Renhe Spring International Plaza, Chengdu City
项目面积 |270m²
Project Area | 270m²
完工时间 |2019.04
Completion Time | 2019.04
与闻珠宝从传统和历史的角度去考究建立和品牌成长,本次设计作品来源于“朴开十向设计事务所”。在完成诉求的同时,保证对行业的尊重。最主要的是营造独一无二的只属于“与闻”的设计方案。 要突出与闻珠宝的特色既要跳脱于刻板的设计印象。从而完成空间的整合....
所以在众多的设计内容里提取等值并且契合珠宝的设计要素,也是如何快速建立设计走向和风格的设计速写。所以在纷多的设计要素里,朴开十向取用((电影)放映、耶稣教堂、帆船廓形、曲面)等设计要素名词。通过设计的组合和勾勒,建立一个框架和雏形。通过融合和设计辅助优化。

分析图

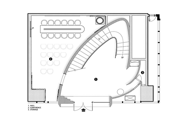
一层平面图
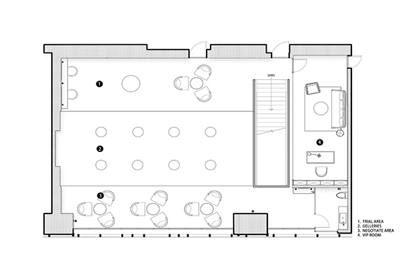
二层平面图

轴测图

一楼并非陈展区,而是留空,添置放映厅。直观的将设计做一个滞缓。在摄入空间画面存储更多的想象。亦是偏颇独立的有关于珠宝的内容。
The first floor is not an exhibition area, but a screening hall. It is intuitive to make the design slow. Store more images in the intake space. It is also biased and independent about jewelry.
空间中通过曲面、弧形角度引导空间的流动和传达。顶部的设计构设于帆船身式样,而墙面的构设于帆片。在现代和古典的艺术空间里穿插一个使者。一起见证与闻珠宝发展的历史。
好的事物也需要经历时间的沉淀和故事的洗练。

/十字架抽象形态布设PURES DESIGN

放映厅
材料 |混凝土 胡桃木 拉丝铜 皮革
Material |Concrete, hickory, Wire drawing copper,leather
放映厅的设计,是除了品牌故事内容输出,也是新品发布。珠宝历史的窗口。厅中所设的罗马柱体和剧目帘无疑不在证明,与闻珠宝的不趋同。扣响主题
The design of projection hall is not only the output of brand story content, but also the release of new products. Window to jewelry history. There is no doubt that the roman columns and curtains in the hall are not the same as the jewelry.
硬线条+冷光源。
门体的设计亦是一种结合。



楼梯做了偏重的设计修饰和遮掩。
在高挑的空间下,完成穹顶的过渡和要素模型。/ 梯步(装饰灯) 地毯和地板的形态一致。
会谈区及珠宝陈列厅
嵌入式珠宝展示区域,墙面地球仪图腾的设计亮点。/ Embedded jewelry display area, wall globe totem design highlights.
灯光 灯源冷暖交替。 内部灰调性格
配饰穿戴区域,在胡桃木格上添置整体仪容镜,更显空间高级!和专属感
一楼梯步细节
(十字架)
穹顶及(灯饰圈状仿教堂蜡烛灯饰)
教堂/博物馆意境借鉴
二楼会客区窗边处做了可伸展木质屏风
(此处利用屏风的增添和利用,可遮掩城市带来的喧闹与车水马龙的忙碌感及风尘仆仆,又不完全屏蔽它的存在,因为这本是这物质生活的一部分;外部环境的周遭,都能连接起来。两者在这个环境下内部或外部的视线交接都在同一感受位置上。)内外呼应
二楼厅部(整体面穹顶)
与闻珠宝内部构设更像是一个珠宝博物馆,外观是后现代极简风格,内心却一直推崇古典文化的溯源。
在繁多的珠宝设计品牌里,恪守对珠宝事业的诚挚之心,追逐纯粹的设计初衷,展现珠宝时代的新革命历程!/PURES DESIGN
领越装饰设计推选
2020-04-15