建筑设计 : GO'C
面积 : 7950 ft²
项目年份 : 2020
摄影师 :Kevin Scott
厂家 : Arcadia Custom, Cedar siding, Concrete Floors, Crystalite, Halo, Liton, Luminii, OLDCASTLE - Windows, Sun Shading, Tech Lighting, Trueform Concrete
设计概念 : Jon Gentry, Aimée O'Carroll
建筑团队 : Ashley Skidmore, Yuchen Qiu
GO'C 2020 Alton Winery
GO'C 2020 Alton Winery

GO'C 2020 Alton Winery
GO'C 2020 Alton Winery
GO'C 2020 Alton Winery

GO'C 2020 Alton Winery
GO'C 2020 Alton Winery
GO'C 2020 Alton Winery
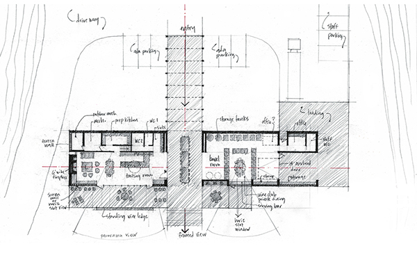
设计聚焦(Design Focus)在利用周围景观资源上,让建筑作为一个基准的构设框架,使平面的景观更聚焦并成为一个人即时视线体验的一部分。到达酒厂后,游客将被引导到正南方向,在轴线上,凉亭的区分将人自然引导至面向整个场地东/西方向的品酒室和葡萄酒园。这种戏剧性的方式捕捉并突出了通过两栋建筑之间的露台所能观看到的湛蓝景色
GO'C 2020 Alton Winery

GO'C 2020 Alton Winery
阿尔顿葡萄酒庄位于华盛顿州坐落在瓦拉瓦拉山谷(Walla Walla)的波浪状地形上,依偎在周围葡萄园形成的现有海湾中。从县城公路驱车经过一段很长的路程,可以看到现有的葡萄园,这些葡萄园被雕刻进自然地形中。该遗址本身是农田中一块未开发的区域。由于人们认为土壤结构和葡萄园拐弯处的位置不可变动,土地所有者和农民一直在等待合适的机会来建造一些特殊的东西。从而提出设计一种对自然景观敏感的建筑。
GO'C 2020 Alton Winery
在这未被建设的土壤上,自然绽放着属于它自己独有的生命和美识。一种顺从于自然痕迹的美。相较于葡萄园的绿意和时间凝结的痕迹。相似的和谐中酒庄的增设让土壤散发更具人物状态的延续感。未知永远会让人产生肃静的思考、热爱的动力。建设、建筑、人力、生产、生态之间保持既定且脆弱的屏障。
如何合适的安置,如何变成其中的一部分,像时间折痕一般的相融于这边土壤。划下另一阶段酒庄、人、葡萄园的升格。
GO'C 2020 Alton Winery
一片巨幕遮盖下,建筑与自然的对白。
GO'C 2020 Alton Winery
延伸视角:Extended View
视线自然的将重心集中于此,再分置区域和景观所给予的体验。酒庄的着力在于人与环境交映的段落。休憩和商业的表达,做为展览和品鉴的地方提供了完美的元素的嵌入。两者间都拥有着相对的平衡!
GO'C 2020 Alton Winery
GO'C 2020 Alton Winery
设计中:含有天幕 棉麻的风帆(波浪地形和遮阳布的重合),藤编的座椅、壁炉、另一侧露台的泥土、通透且具有延伸感的建筑。无不在介绍着酒店服务于人和环境。没有奢靡的装饰、重要的是这片土壤的生产,它所形成的一切,囊括故事发酵、葡萄酒的产出、意义和未来。
GO'C 2020 Alton Winery
空滞的整块表皮,不适葡萄藤的生长,自然会形成两种不同的发展方向,一则增加建筑物的落成提高游客、酒商、艺术展览的合作或葡萄酒文化的博物馆、基金会的推进。另一则规划将土壤还给土壤?翻新成带有Alton Winery的麦田或珍稀的葡藤的创新基地,尝试创造新的育种、给予葡萄酒类一个漫长的具新的未来平台!无论Alton Winery怎样去适用,都归于发展。唯一能见证时间的不是永恒,是选择。
GO'C 2020 Alton Winery
可以看到侧面露台和正向露台的区分,一侧商业,一侧自然的对比。
GO'C 2020 Alton Winery
视线在整个起伏的地形上反复被推演,环境始终是这片土壤最大的竞争力。我们需要为商业建筑的不受限,以及“自然”依然存于设计的另外中思考。
本文酒庄文化的建筑,出于三者(拥有者 农民 土壤)共同的推进,它是小而优质的设计物;拥有未来 匠心 环境的致意。即使以简洁、平衡的立意、命题的留白进行整个建筑的释义,对于阿尔顿葡萄酒庄来讲最重要也是这份坚持的初心赋予的。

GO'C 2020 Alton Winery
GO'C 2020 Alton Winery
整体设计:使用了木材、钢结构、混泥土、陶制品、玻璃、皮革........
色彩:暖色调与冷色调之间来回转换 形成一种平衡对称 理性 又兼互环境的浪漫。

GO'C 2020 Alton Winery
侧露台是一个开放、通透的品酒室是给予客人休闲、逗留的地方,这是一个最先进行保留的一个空间,开阔自然的环境会产生良好的环境氛围,提高共鸣性,正向开放带屋顶的室外空间和南部的大型露台又增加了其他内容的可用空间,并为客人的需要带来不同的酒庄体验。
GO'C 2020 Alton Winery
随着建筑向远处的田野开放,南面的辽阔的景观尽收眼底。在以夏季干热、冬季寒冷凉爽著称的地区,与景观、室外空间和荫凉时段的联系是设计酒厂的重要因素。客户希望拥有一个独立的葡萄酒花园和品酒室,因此在两者之间设计了露天空间。这既是进入酒庄的入口和视觉的入口,室内、室外分隔使品酒室和葡萄酒花园都可以向活动空间开放,并为来访的游客提供可达视野。
GO'C 2020 Alton Winery
这座建筑的顶部是一个遮蔽屋顶,屋顶由三个部分组成:一个锚定烟囱、一个天窗和一个雕花洞口。这些元素有助于为空间的西端引入自然光线,并深入建筑各层,并在一年四季提供天空的景观。

GO'C 2020 Alton Winery
黄昏和一天日暮,拥有极致的静谧时段,风、温度、湿度、气候都尤为吸引人的向往;相对一尘不染的酿造空间和灌装室。这里更符合游客进行品鉴和放松!是一个和环境相得益彰的建筑空间。而且开放的室内和室外都可以达到一致的目的,这就是环境本质的优化和保留。给予设计和空间一种贴合自然、可触达的感受。无形的体验间就会达到一种更加真实和惬意的状态。
设计师的思考和对人文的剖析做的很好,直白且合理的延续了环境带来的感官。根据夏季、冬季的温度差、遮阴时间进行材质和建筑体的规划。在小的趋同的材质意义的表达也同样是贴合和紧密的。
GO'C 2020 Alton Winery
壁炉的增加,考虑到冬季室内极寒条件下的耐受。松木的燃烧释放令人放松的气味,红酒的味道被上升的体温所覆盖,体验到于夏季完全不同的惬意。
:手工锭制的黄铜茶几
: 壁炉的切分(木材的堆砌(既可以增加环境层次和室内效果)同样也为散发湿气保存干燥的松木)壁炉温暖的呼应又在另一面临摹出生活的本意:带着温暖的意义,去做需要时间沉淀的事!
GO'C 2020 Alton Winery
:与壁炉墙等例的浅棕色皮革沙发(增加活动人员交流的同时、也适其环境、饰物的节奏、色彩)
GO'C 2020 Alton Winery
整个阿尔顿酒庄释放出一个非常明确的信号:就是以环境做为主内容、依次是体验、交流、产品、品类、活动的带入、文化的传递。在品牌立意的需求下,建筑拥有先天的优势进行建筑的设计和修改。当然我们把阿尔顿酒庄看作是一个衍生的综合体;未来必然还有更多的设想和可能。站在设计和发展线上突破和蜕变都将形成一个焕新的阿尔顿品牌!
有幸沿着这样一个示例,去发掘、去寻找到一种平衡的思考。