《星光》
住宅设计作品
设计师设计作品:
在一个会令人存有疑问的作品下,细细发现它所散发出来的原生力量。
它简白无深刻的意义,只是自然而然的跃入一个住居者的内心作品。
他的一次微调,改变的不再是作品;而是留在当下对未来设计格局的寓言........
星光:
星光骤暗,众物不知新明;应为此时的生生不息,也为将至的混沌!
客厅
该作品,重在质感和整体输出。
作为一个简约的跃层住宅设计作品,它并不出挑。使用原木基础作为作品的调和,能更好平衡、收缩作品的质感及比例。整体的画幅不大,更像是脱陈出新的在原维基础上做出锻造。从而将设计归于成熟的作品的一种延伸!
住宅作品中的设计分层也过渡的非常直白。但是优于整体的视觉,作品在未来空间具有更大的转化优势。
客厅
客厅采用的是曲面布绒沙发,柔和平行线条的刚直感。 在软装的色彩搭配中走的是规避过渡的搭配方式,转换的时候会考虑到材质和事物之间相对应的关系。以曲静变奏的视觉方位铺展生活的边角。在空间的使用上,稍有空滞。当然它存在于住居者的思考下成为一种无过多杂质的回味。
客厅
解读硬装,在线条和切分上做的十分考究,但在整体融合下,确实还不能击中所有只能面对平面设计效果的人
视觉切分
面对每一个作品的中立面,应是给予可视、可观、可食。可稳定的感受。
星光这个作品,具有独立、清冷、距离、和一点添量的商业氛围触感。
是一个不用特意亲近和走进的作品,设计师给它设立的性格或就是那点星光遗留下的启发。


(楼梯、西厨、客厅、书房的三角中心)
中置餐区
餐区位于书房和客厅的夹面中心,在平分的视角中呈其上与下的连贯
中岛台
L型是常规厨房设计的标准
操作面让人倍感舒适,环面的室外景色和光净度也突出了作品的苛求。
平层房间的设计
主卧的阳台和设计对照,以一种更肆意、自由的状态在描写生活的多样性。
主卧视角
主卧视角
主卧卫生间
次卧视觉
二楼户型图
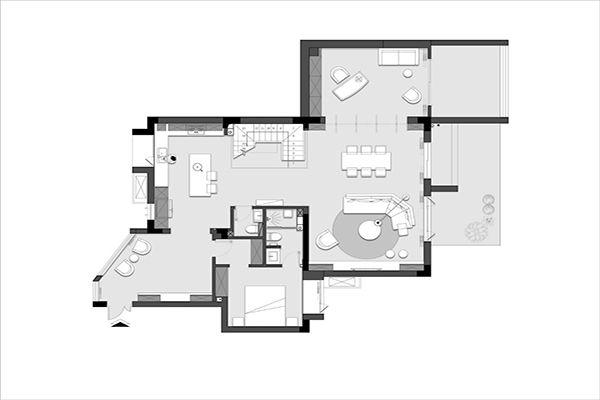
一楼户型图
整体作品优良分明,在保持基准色彩的推进下,放大空间的通透度。有势态断层的感受
但他的成型与受众已然决定了作品的设计主位,和生活定位。
喜欢低饱和度环境的住居者可能对此的喜欢会更甚。
其实这是一类新的设计需求的变化。不再一味要求空间的紧实度,而是具有弹性的表达住居者对作品环境分离的吸引
在一种质感纯粹的画面中,体会更符合个人特性的设计。
设计的变化是多元共生的,不再取值于价值以真实的需求,探索生活和自我。或完成一次新的设计生命的变革。
作品或许没有像画幅那样完美,但在奢居的对比下,能放下姿态以一个观察者明晰这个时代的巨变。
为独立的生活做一些反方向的试问。当然主流时代下,媒体文化的冲击是令人矛盾的。夹然而生的具有私密、自由、生命的张力的作品!落实的非常的微妙,不敢太冲突,也不敢分离的过于滞缓。所以面对作品的质疑或赞赏都是一个良性的平衡,因为我们既要从各类的设计代表中认知到设计对住宅本身的敬畏。更要真诚的看待每一个设计生命的衍生!
当然这对于具有高维思考和前瞻视角的设计师来讲,是一件可以不断探索和剖析学习的命题。
当然世界不缺少发现这类的伯乐,重在人对自己能够把控的事物都具有排他性。所以认同是最难以前进的步伐。
这个作品的枢密就在其中,让人具象的感受,又体会不到那绵密的变化。
像奔走在模型间的对话,在不断散落出对此的低鸣!
领越装饰推选
2021年2月24日