选自设计师:展小宁
疗愈之间家居住宅室内设计作品!
Between healing
(被疗愈的,不仅是,还有,什么!)
In the middle of the world, hold an empty space. Use healing to restore this pure sustenance.

Exterior wall - irregular stone wall
外墙壁 -不规则石材壁面 用纹理打造粗糙的住宅皮囊

Between healing - 关于空间留置感

Between healing

Between healing

Between healing

Between healing
Between healing

Between healing
Between healing
Between healing
Between healing
Between healing
Between healing

Between healing
Between healing

Between healing -会谈区
Between healing -分层
Between healing
Between healing-主卧
主卧整体偏vintage 风格、包括饰物和风格都有一个独世的感觉。
Between healing-主卫浴
在风格的叠加和延伸中,相互平衡。
Between healing-后庭院
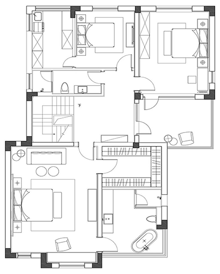
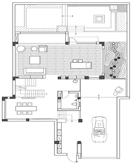
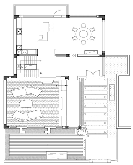
Between healing-平面图
Between healing-平面图
Between healing-平面图
With the current vision, to see the beauty of the past material building structure, in the way of visual capture, with the choice of accessories and home. In contrast, repair the link between the gullies of time. Reset the beauty of the times, heal the modern and repair the past. When a design work becomes the carrier of a story, its existence also has significance. The existence of design is not to deduce beauty, but to leave a chapter of time record for it.
译:以当下的视觉,去看过去物质的建筑结构之美,以视觉捕捉的方式,同饰物和家居的选用。形成对比,在时间的沟壑间修复链接。重置时代之美,疗愈现代、修补过去。 当设计作品成为一段故事的承载,它的存在同时也具有意义。设计的存在,不是推演美,而是为此留下一章时间的记录。