Son Puig横梁住宅 / RipollTizon Estudio de Arquitectura
独立住宅
PALMA, 西班牙
建筑设计: RipollTizon Estudio de Arquitectura
面积: 243 m²
项目年份: 2020
摄影师: José Hevia
主创建筑师:Pep Ripoll, Juan Miguel Tizón
设计团队:Pablo García, Erik Herrera
测算师:Toni Arqué
结构顾问:Jorge Martín ortega
City:Palma
Country:西班牙
本次以一个建筑案例,来围观的有关于可持续住宅在设计时所着重的想法处置和理念的平衡,物质间的工艺技术和它所要表达呈现的内容。
极大多数的设计行业者,会有强烈的共鸣。设计的表达会形成怎么样的力量,以及我们在对艺术脱敏的情况下的自我感知,是偏航的、还是在物的组成范围内。国内外的表达方式有其对设计的两种极端。所有无论是以哪一种方式,都应在尊重设计原则的情况下诞生和分离!

这个建筑设计作品由分开的独栋住宅所组成的。分布在社群之间,因其相对较高的地理位置,住宅也拥有最绝妙的风景瞰览的优势!

内部与外部相互延展
材质和石材包括木材以及色彩的协
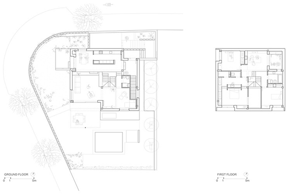
平面图
由于用地比较紧张,设计师决定尽可能将建筑的底部做得小一点并且将它合理规划,从而将其他的地方规划出一个质量与方向都极好的景观花园。设计结果是围绕着一个很有特色的楼梯而形成的空隙场所,整体用地被分为四个尺寸;利用方形区块完整用地方案。生活空间错落在不同楼层以一种流动的方式将其的关系组织起来,因此花园楼层相连的公共空间、以及更高层拥有独立的更私密空间。设计上在暴露的钢筋混凝土中可视化的建筑的结构形成了这个建筑作品内部的物理特色,并且充当了建筑形式语言的驱动者。
错落空间的视角面
在外部,建筑以一个整体体块作为建筑的呈现,表皮被不同尺寸和规模的建筑纹理(材质)相乘并呼应方向与内部空间需求的元素打通。和建筑内部的流动与动态相对比的是,建筑体块的外部以一种更加中立的语言形式呈现。
空间有众多明示的,微末的细节诠释!令人惊喜的有关于莫里茨·科内利斯·埃舍尔,对建筑空间的表达和体现。
剖面图
整体的建设与室内设计,遵从对内容的扩容,让整体得以最优化的方式。
使用这种方法让材料本身的内在美学与建筑施工技术得以展现,成为了房子的一个持久的形象。
RipollTizon Estudio de Arquitectura
项目项目建成选定的项目居住建筑独立住宅On FacebookPalma西班牙
以一种无法查喻的建筑的设计状态,重置设计核心
细则可以看一下建筑类设计对莫里茨·科内利斯·埃舍尔艺术作品的借鉴。从中也会加深对建筑视觉的表现方式。(因为无论是建筑设计和室内设计两者都是近现代欧洲设计里程中的重要一页,因为在设计上他们具有系统的学习和先天地理优势,设计教学和著名建筑作品或经典的设计运用理念都可以超前的从欧美地域上找到成型的建筑物标准。规格高的很多重要的建筑大奖和设计奖项都极多数的颁给给前者,而越来越来多的中国和亚洲设计师代表的突破,形成多元文化的组成,也有了更多的空间做设计呈现。从文化的溯源中,中国建筑历史的痕迹和建筑作品的借鉴也具有更庞大的接纳度!学习是一件长久并有效的事。设计是艺术和文明的体现。)
LINGYUE(推选)
2021年7月06日