orrrn寄生火山咖啡厅设计
西归浦市, 韩国
建筑设计: ATMOROUND
面积: 672 m²
项目年份: 2021
摄影师: Woo-Jin Park
死掉的生命,借助自然的堆砌,找到生的支源。以此为生命的主题,旁系这故事的循环。当然如设计师所陈述的那般;生命之间需要如济州岛地形那般的不断向上行走才能发现不同风景的攀登力。一个非饱满且无法完美的建筑的呈现或有多种关于意义的追叙。但这个作品无论是存在与否他的本质是希望更多的人群可以找到与自己 与生命 与命运 与自然 与本身内核相互平衡的意义。作品是一种延伸。当然创立是无罪的。因为环境和自然与建筑设计内容的本身,都是容易因为主要的因素所崩坏的。作品最后的回溯,最终会回到一个最初的答案上来。
看一个完整作品的表达,我们能清晰的看到设计是否可以永续。
手绘剖面
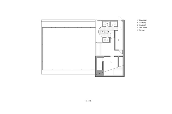
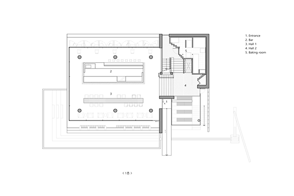
这是一个来自韩国济州岛选用当地自然基石的咖啡厅。设计师用这些原石作为空间的一个精神和设计趋向,空间内设计了一个展台在靠近引向二层的楼梯处,这些石头用于了空间的展示,并融入作品内就像一件艺术品一般陈列与这座寄生火山上,也为了后续空间的设计做了前缀的辅助。
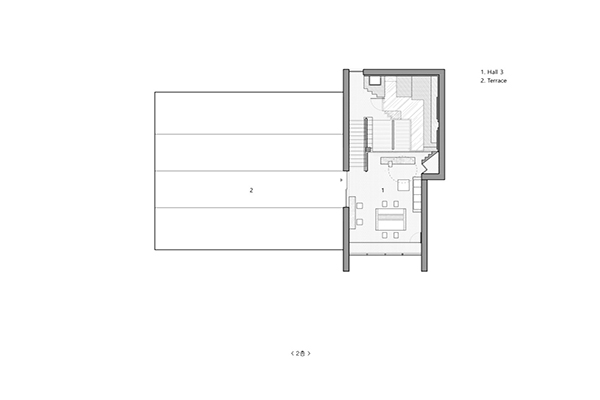
看向整个建筑,你会发现它是被分为左侧一层与右侧二层的空间;为了达到右侧空间的体量,在设计的考虑下我们又增加了楼梯。楼梯是为了模仿寄生火山的自然景观,而不仅仅是为了到达二层空间使用率的试验,设计上是与济州岛宏大的建筑和自然风格不可分割的,在自然条件的创造下给予体验者一种攀登的氛围感但又不脱离整个建筑风貌(形成一个自然的序列)。在向上的设计半途中1.5层楼处,你可以从“寄生火山”的阶梯上看到远处的大海;紧密和紧缩在一处私密且固定的景观中。在向下的半途,0.5层楼处,有一个开放的洗手池,他的运用在通常的设计空间内容里显得格外注目;因为它是被植物以及盛开的花卉所环绕的。在1.7层楼处,你可以看到一个独立的烘焙室,其中原砖被堆叠起来,看起来形似于攀登的造型;与建立的建筑阶梯所营造的攀登的建筑精神相互契合着。
从地图至下看下去,我们能看到他所在位置是在环形公路的一处海湾处的。相对于其他喧闹的地点。他的设计和自然景观的融合更具地理气息。
咖啡厅的门标以及阶梯的延续一直运用在设计的各处。

选址之前的调研被取消后,设计师在济州岛的地质特点以及自然的风光上做了全面的解析后 设计的走向的被不断的讨论和试炼:济州岛的地貌从文字上变成动态的翻译,波涛涌动的蓝色大海,强劲异常的风,黄色的油菜花田,黑色玄武岩层,飘摇的芦苇荡……一节一行的缓坡,这些都是和陆地上所不同的体验。为了使建筑不至于影响这些美妙的感受,且与自然环境相协调,我们将这次过程的概念定位为“在此而已”。 从自然和文化和建筑的表达三者联系上进行每一步的设计的调整。希望我们可以看到更多内在的东西可以在自然的边界可以被融合且接受。

通常来讲,屋顶上的视野和斜屋顶的视野是根据一个人的姿势(情况)呈现变得有所不同的。设计背后的想法是为了使人们更加积极地参与到从“屋顶”这个视角来看大海。其中我们远离了“室内地板”的建筑概念,想要表达出这样一种态度:从人们所站立的地面攀登,并与周围的自然互动。
烘焙(bei)室
我们通过日光的折射变化可以想象出北海以及南面的田野的感觉。建筑的一层由水面升起,比咖啡厅一层地面要高。如果你想从一层空间直接观赏大海,你需要爬上一个缓坡。从缓坡上,你才能阅览到清澈而湛蓝的北海。在高于地面的空间上观赏大海,视野与汽车、行人都在相叠并流动着。
我们并没有局限在形状上,而是继续推进支持空间设计与自然元素相结合的概念。玻璃桌面水平放置,与北海相平行。如果你从玻璃桌的平行视角观看大海,你可以看到一条尤为清晰的水平线。我们试图将海平线的和平与宁静带入其中。

对济州岛自然环境感受如何,取决于他是怎样看待自然。登上寄生火山与自然接触是一个动态的行为。就像爬山一样,我们希望创造一个这样的空间:在这里,参观者可以实时欣赏自然,感知与自然有关的所有故事。
吧台石材刻凿纹理。地面也留下一块类似的呼应设计点
吧台,则是为了模仿快速冷却的熔岩形成的筒形节点。当我们第一次讨论主吧台时,我们想要将自然元素带入其中,但并不是通过常规的印象。去塑造一个类似的产品。而是将这个现象印拓下来。吧台选用的石头带有暗淡时光凝结的物质质感,利用竖直线在异丙酚件上画出图形,并用刀一步一刻的雕刻出模板。于是,由“ATMOROUND”独家制造的材料诞生了。与之整个吧台的建筑体征有了新的有趣处。
建筑入口处(一)
形似楼梯,也借喻楼梯表达寄生火山所表达的有关自然和攀登运动间的联系

由于岛屿的火山活动,在济州岛内形成了许多平缓山丘。城山日出峰就是其中的一座。Oreum被叫做寄生火山,因为它是由靠近大型火山的各小型火山形成的。关于Orrrn的体量并没有很奇特的概念,我们只是希望它看起来像一座济州岛上自然形成的小型寄生火山。也就是要自然地渗透一座从海面浮现出来的寄生火山的地理形象。因此,逐级的体量从场地周围的水面空间升起。从水面升起的体量从室外延续到室内,不断延伸向上。品牌的名字“orrrn”和“oreum”也有关,使人想起寄生火山的圆形结构形式,向上攀爬的意象。
Orrrn”本就是济州岛自然的一部分。它也是为了理解攀登到这个地方时观赏大海的感受,并描绘出我们对待自然的态度!所形成的一个带有济州岛的符号的栖地。
济州岛形成的独特地质因素,是设计选择的平衡。也是一次探索自然意义的启迪。济州岛成为众多艺术家和海岸咖啡的最佳选址。除了自然风景,这还有众多人逾越的痕迹。做为以咖啡为载体的建筑物。本个设计选用寄生自然 火山群落的概念想法现实各维度的生存关系。借自然形态,与之共生。