自建式配制住宅:
Self built residential compound 01
建筑和艺术生命的自洽。
Self consistency of architectural and artistic life.
Signals from life and work! The voice of independent objects and ethnic groups.
The 01
The 01
The 01

The 01
The 01
The 01

The 01
The 01
The 01
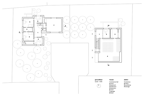
Outer building: steps
The top floor has an entry and travel area directly embedded in the outer room.
Interior: steps and space design
Indoor: Mirror sense
The space is divided into different areas to clean up the dead corners with a clean surface.
Overall color matching: Brown as the settlement color of the overall space, silver as the balance and green as the decoration. There is a very comfortable sense of neutrality!
Indoor open reading area (the opposition of free natural landscape). And spatial emotion.)
In the high space, it faces a more natural window, books on one side and a green seat made of velvet. A layer of time and space interval.
Cement ash top surface with granular feeling and light gray lanolin carpet. Everything echoes each other in similar textures.
The arc of architectural space, silver gray curved railings and the matching of natural stone patterns seem to establish an information docking chain point for each surface of this space. Form a local branch of art in transition and dispersion.
The green dining chair and silver lamp match (it is a jumping high-level color) wood neutralizes the floating content in the space.
The wooden round window of the kitchen: it is to spy and share, and it adds an atmosphere to life.

Face and avoidance
Art is direct, hidden and boundless. It is the collection of many substances and the coincidence of dead things. We distinguish the edges of architecture and art through visual perception, touch and an irrational brain. There is no edge of hoarding art. Of course, we will witness and talk about a work in different ways.
Many studios
Painting coincides with life and architecture. In a single house. To explore the long-term and lasting relationship between space and matter as a painter, a living and a designer. The shell of the existing building provides a more comfortable way of exhibition between the house and the studio
We can find hidden traces of life in this self built space. A book, a picture, a dinner; Afternoon outside the window and reading. A quiet night and busy shadows. It's an expression of time in life.
You can enjoy a work and find your own peace.