Seehof 希霍夫酒店
什么都可以消失,唯有自然礼赞应一直在。
建筑师: noa* network of architecture
面积: 5000 m²
项目年份: 2017
摄影师: Alex Filz
厂家: Finstral, Fischnaller, MARAZZI, Murexin, tineKhome




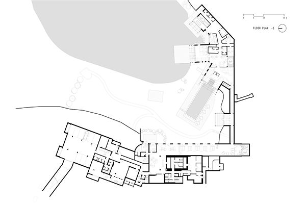
来自建筑师。Seehof 酒店毗邻 Flötscher Weiher 湖,位于 Natz- Schabs/Naz-Sciaves 小镇 (意大利)附近的高原上。2017年,这座家族经营的酒店直接在湖面上加建了新的泳池和健身区 - 项目注重游憩价值的同时也注重保存该地的自然价值。

新建带泳池的 spa 区与桑拿区结构性地与周边景观相连,用一条不规则形状的坑洼小径引向面朝湖面的巨大全景玻璃,令人惊艳。周边环境映入室内的景色经过了精心安排

室内还有一个可看作是小庭院的开放空间,简明地传递自然的氛围,让人仿佛置身于公园。户外区的设计也起到了重要作用。小径条条,殊途同归。湖边静静地散落着几栋小楼。

“木质的外立面和它粗旷的表面以及周边环境息息相关,材料选择上注重结合当地原生材料。酒店的特色与酒店名都有意演绎出建筑与湖的对话。”


在酒店的附属配套上未大面积的使用混泥土路面,而是以小径分支的景观方式,铺设道路。形成一个环绕式的静谧空间。植被的覆盖更是与一侧树林的相融。
室内设计的重点在于格外注重结合周边的自然材料。木材,亚麻,石材,编织家具与饰品和明亮沉稳的颜色符合 Seehof 的自然主题。









公共桑拿室
玻璃展合的一侧,是隐秘的。即自然公共,也是行径私密!
整个作品你能看到它保留了自然之意的象征,也将细节进行添置入这个建筑附属区域。
其实最主要的还是源自农场庄园几代对自然的释义。它们清晰的知道什么是自然有,什么可以被种植。(这个作品就是在平衡之中找到的一种与自然一同生长的力量)