02小城故事-厂房 B作品析赏
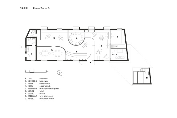
这是B仓库,一间充满了活力与童趣感的活动空间(儿童读物区),异形空间的划分及设计,取自建筑电影和概念空间的影响,是与A仓库一动一静的呼应,在A仓库会显得设计偏向成人思维的模式,它更规矩、空间感更自由更饱满舒适,而在B仓库,他的设计注重更偏向儿童的性质需求,例如选用异形面-流动的具有曲面弧度的墙面-透明的材质-开放不做封口设计-小空间的格局,来分化两间仓库的性格风貌和性质用途。
整个B仓库更像是儿童的私密活动基地,更多的自然空间留给他们去发现和探寻。让他们去做这建筑设计的主角。是设计和客户的双重想法。不论大人还是小孩都需要属于自己的空间和环境,这是让他们共生的前提,尊重成长的特性,才能更好的保留真实。刻意的、投巧的设计只能算完成社会环境里对合格的认知,并不代表可以引领建筑的内在。和本真的表达!
Half Section-B
Plane-B
Axis Diagram-B
Molding device
Curved stream surface
Installation room
Children's Reading Area
Midline surface
Area B Channel
Subjective Vision
Open Reading Area

Area B Modeling Surface
Area B Modeling Surface
Style of store in Area B
领越设计
2019N-07-23H.