上海-大田秀則ギャラリー(2017)
上海-大田秀则画廊
设计空间作品析赏
这间位于上海西岸的第三家画廊空间,是继日本本土-新加坡后的第三家上海改造画廊空间,也是一个新型艺术拓展的一个多样化平台,要重塑建筑与设计的联系,必须了解画廊的内在或本源。这间以大田秀则本人命名的画廊空间,是1994年创造于东京(通过剖析未来艺术产业发展的趋向,整合了众多合作艺术家资源-绘画艺术-新媒体-雕塑-装置作品-表演艺术-工艺品-代理业务的整合式画廊)其中也不乏名家合作。算是个人盈利艺术机构的先创吧。
上海-大田秀則ギャラリー(2017)
Before Park Renovation
上海-大田秀則ギャラリー(2017)
Sample Diagram of the Park
极简的情绪变化,一一铺展至视线周围。
上海-大田秀則ギャラリー(2017)
Sample Diagram of the Park
上海-大田秀則ギャラリー(2017)
Sample Diagram of the Park
上海-大田秀則ギャラリー(2017)
Sample Diagram of the Park
上海-大田秀則ギャラリー(2017)
Sample Diagram of the Park
上海-大田秀則ギャラリー(2017)
Internal sample diagram
上海-大田秀則ギャラリー(2017)
Internal sample diagram
上海-大田秀則ギャラリー(2017)
Internal sample diagram
设计师利用单元盒子的概念延续着风格,分划陈列区域。空白的区域会放大每一块墙面的优缺点,要想完美的契合每一个画展类型或陈列风格是不可能,只有将设计的原始目的展现出来才会不同与开明的薄弱的艺术形式的表达
上海-大田秀則ギャラリー(2017)
Internal sample diagram
除了室内照明,自然光源是艺术生命的最高赞誉,通过这种冷一点或暖一点的艺术结构的相融,我们会发现每一副流露着感受的画或将被带入这个空间里的事物,都保持着高度醇厚的本真在其中。一隅眸间,众人皆是万象。
上海-大田秀則ギャラリー(2017)
Internal sample diagram
每一个不同客户的需求,印证这个设计结构或空间能否接受时间的验证和艺术形式的变革。
上海-大田秀則ギャラリー(2017)
Internal sample diagram
上海-大田秀則ギャラリー(2017)
Internal sample diagram

上海-大田秀則ギャラリー(2017)
Internal sample diagram
Internal sample diagram
上海-大田秀則ギャラリー(2017)
Internal sample diagram
每一个空间里存储的能量是不一样的,而这缕寄存于画廊空间的阳光,或多或少是设计时设
计师应考虑的一部分。在画廊空间这种流动性极强的商业平台里,许多事物的黏合或共生都有同一种物质的吸引。或是价值或是建筑外形或内容的传输。总是有那么一种不同于艺术博物馆的艺术容器在扩张。袭流世界对新新艺术的包容。
上海-大田秀則ギャラリー(2017)
Internal sample diagram
上海-大田秀則ギャラリー(2017)
Internal sample diagram
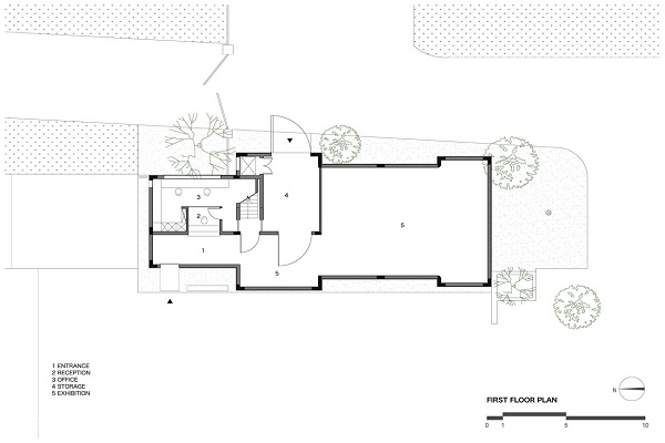
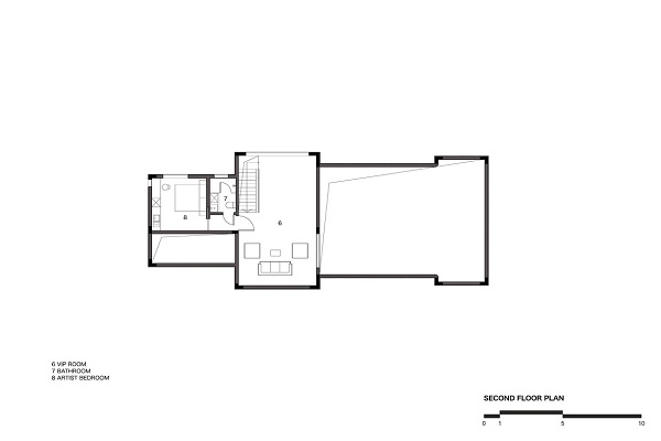
Drawing reference
Drawing reference
Drawing reference
Drawing reference

东京空间-樫木知子个人展览现场

新加坡空间,久门刚史个人Quantize展览现场
新加坡空间,唐狄鑫个展Dog Bark展览现场
上海-大田秀則ギャラリー(2017)
Recent Exhibitions
所有建筑外形在落实到世界的驻地时,他的存在都将是远古艺术的延续。
领越设计
2019N-08-23H